玄関周り、階段、通路、敷地の石張りなど、環境に合わせた施工が可能です。お気軽にご相談ください。
石の特性を知り尽くした石屋ならではの おしゃれでかわいいエクステリアです。
樹木の囲いと違い、あまり手入れがいりません。
門から玄関までのアプローチは、自然な乱形石英材を利用した床材で、オシャレで明るい感じの雰囲気を醸し出しています。
茶色とクリーム色で流れを表現した門柱をデザインしました。
洋風なファサード(建物の正面)を、さりげなく形に致します。お客様を大切な気持ちで招き入れるそんなデザインです。
それぞれの素材が生み出すファサード(建物の正面)が、和と洋の融合を作り出します。
二色のアプローチレンガで明るくより印象的な庭を演出できます。
小窓がついたウォールにより、日差しと緑を楽しむ空間です。
オシャレな中庭(パティオ)で、ゆっくりお茶を楽しむ。そんな空間を作り出します。
正面部分の見取り図です。
正面から続く部分の設計図です。コーナー庭園が見えるような設計にしています。
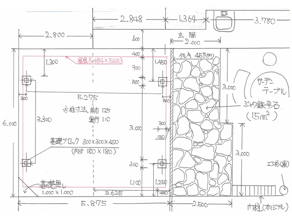
中庭(パティオ)や駐車場の設計図です。全体のイメージを細かく決めます。
オリジナルデザインの門柱や床材で、ご自宅の玄関先やエクステリアをもっとステキな空間にしてみませんか?